アーバンパレス 瀬田の1K賃貸ハイツ!|センチュリー21sublime

SHARE!

Instagram TikTok line Facebook
来店予約 ネットで
来店予約
TOPページ
物件検索
大津市の賃貸情報一覧
瀬田の賃貸情報一覧
アーバンパレス 瀬田の1K賃貸ハイツ!

アーバンパレス 瀬田の1K賃貸ハイツ 

  • 3.6万円 / 管理費: - / 共益費:4,500円
  • 間取り:1K / 専有面積:21.21m2
  • 敷金:5万円 / 礼金:5万円 / 保証金:0ヶ月 / 敷引:0ヶ月
【建物外観】 
  • 【建物外観】 
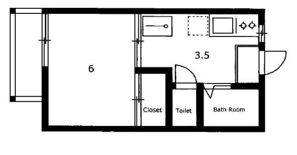
  • 【間取】 

【アーバンパレスについてスタッフからのイチオシポイント!】

瀬田駅徒歩7分★インターネット無料★バストイレ別★
アーバンパレスは滋賀県大津市大萱2丁目【JR東海道・山陽本線 瀬田駅徒歩7分】にある1K賃貸ハイツです。
1991年4月築の2階建てのハイツで、お部屋は2階建ての2階部分です。
物件の広さは21.21m2で人気の1Kです。
※お部屋のもっと詳しい内容や入居時期、諸条件のご相談など、ホームページには掲載が間に合わず載せきれていない情報もございます。
気になることが御座いましたらお気軽にメールにてお問い合わせください。
077-516-1877
センチュリー21sublime草津駅前店
お問い合わせNO:RHS-170301-33337c

物件基本情報

所在地 滋賀県大津市大萱2丁目   周辺MAP
交通 JR東海道・山陽本線 「瀬田駅」 徒歩7分
JR東海道・山陽本線 「石山駅」 徒歩41分
JR東海道・山陽本線 「南草津駅」 徒歩42分
JR東海道・山陽本線 「膳所駅」 徒歩59分
種別 / 構造 ハイツ / 軽量鉄骨造 主要採光面 - 所在階 / 階数 2階 / 2階
築年月 1991年4月  間取り 1K( 洋室6畳/K3.5畳 ) 専有面積 21.21m2

物件詳細情報

損保 更新料 あり 新賃料 1ヶ月 鍵交換代 -
駐車場 あり5,500円 近隣駐車場   契約期間
借家区分
2年 -
現況 空家 入居可能日 即入居可 取引態様 媒介
保証人代行会社 クレデンス 50.0% 初回:総賃料50%(最低保証料25000円)更新:10000円/2年 仲介手数料 バイク置き場
他初期費用
Kサポート24 1210.0円 町費/月 700.0円 更新事務手数料/2年 11000.0円 

設備詳細情報

キッチン
  • ガスコンロ対応
  • 2口コンロ
バス・トイレ
  • バストイレ別
  • シャワー
  • 洗面所
  • バス専用
  • トイレ専用
住空間
  • 最上階
  • バルコニー
  • エアコン
設備・サービス
  • クロゼット
  • 駐輪場
  • BS
  • ネット使用料不要
  • 平面駐車場
特 徴
  • 閑静な住宅地
  • 通風良好
条件・その他  ガス:都市 / 水道:公営 / 排水:下水 / 保証人代行:必加入
コメント 瀬田駅徒歩7分★インターネット無料★バストイレ別★
備 考 くらしサポート24:1210円/月
町内会費:700円/月
更新事務手数料:11000円/2年

学区情報

小学校区 大津市立瀬田北小学校
(滋賀県大津市)
中学校区 瀬田北中学校
(滋賀県大津市)
情報更新日:2026年04月11日 次回更新予定日:2026年04月25日
※各種情報と差異がある場合は現況優先となります
※物件情報の学区情報について
当サイト物件情報に記載されております通学区域(学区)情報は、国土数値情報ダウンロードサービスが提供する小学校区データ【2016年度】及び中学校区データ【2016年度】を元に加工したものですので、記載情報が現在の学区域と異なる場合がございます。国土数値情報ダウンロードサービスのWEBサイト上で記述通り、データは必ずしも正確とは言えません。また、通学区域(学区)は毎年見直しの対象となりますので、そちらを踏まえ学区情報は参考としてご活用下さい。

近隣スポット情報

こちらの物件の空室状況

所在階 / 部屋番号 賃料 共益費 / 管理費 間取り 専有面積 敷金 礼金 お気に入り 物件詳細
202 3.6万円 4,500円 / - 1K 21.21m2 5万円 5万円 お気に入り 物件詳細
202 3.6万円 4,500円 / - 1K 21.21m2 5万円 5万円 お気に入り 物件詳細
202 3.6万円 4,500円 / - 1K 21.21m2 5万円 5万円 お気に入り 物件詳細
202 3.6万円 4,500円 / - 1K 21.21m2 5万円 5万円 お気に入り 物件詳細
077-516-1877
センチュリー21sublime草津駅前店
お問い合わせNO:RHS-170301-33337c

この物件に似た物件をチェック!

  • 賃貸ハイツ 3.8万円

    瀬田駅 徒歩15分

    1K(23.59u)

    都市ガスで経済的!一人暮らしの方におススメ♪

  • 賃貸ハイツ 3.8万円

    瀬田駅 徒歩15分

    1K(23.59u)

    都市ガスで経済的!一人暮らしの方におススメ♪

  • 賃貸ハイツ 3.8万円

    瀬田駅 徒歩15分

    1K(23.59u)

    都市ガスで経済的!一人暮らしの方におススメ♪

  • 賃貸ハイツ 3.8万円

    瀬田駅 徒歩15分

    1K(23.59u)

    都市ガスで経済的!一人暮らしの方におススメ♪


閲覧した物件の履歴

閲覧した物件の一覧を見る

最近検索した条件一覧



気になったら今すぐ!カンタンお問合せ



お問合せ内容必須
【備考欄】
希望条件・来店希望日・その他質問がございましたらご記入ください。
お客様情報
お名前必須
連絡先必須


※ご記入いただいたメールアドレス宛てに、お問合せ内容の確認メールをお送りいたします。
※Yahoo!メールなどのフリーメールをご利用の場合、迷惑メールフォルダに入る場合があります。
 迷惑メールのフォルダ・設定等をご確認下さい。
メールアドレス
電話番号
FAX(任意)



プライバシーポリシーを必ずご確認ください。内容に同意の上、確認画面へお進みください。

 


▲ページのTOPへ戻る


お問合せはこちら

センチュリー21sublime草津駅前店 077-516-1877