西大津ひまわりビル 大津京のその他賃貸店舗(建物一部)!|センチュリー21sublime

SHARE!

Instagram TikTok line Facebook
来店予約 ネットで
来店予約
TOPページ
物件検索
大津市の賃貸情報一覧
大津京の賃貸情報一覧
西大津ひまわりビル 大津京のその他賃貸店舗(建物一部)!

西大津ひまわりビル 大津京のその他賃貸店舗(建物一部) 

  • 12.65万円 / 管理費: - / 共益費:16,500円
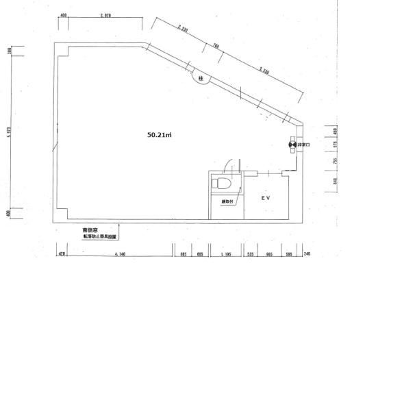
  • 間取り:その他 / 専有面積:50.21m2
  • 敷金:0ヶ月 / 礼金:0ヶ月 / 保証金:3ヶ月 / 敷引:0ヶ月
【建物外観】 
  • 【建物外観】 
  • 【間取】 

【西大津ひまわりビルについてスタッフからのイチオシポイント!】

整骨院・事務所・美容系に最適☆大津京駅前のテナントビルに空きが出ました♪
西大津ひまわりビルは滋賀県大津市皇子が丘2丁目【JR湖西線 大津京駅徒歩2分】にあるその他賃貸店舗(建物一部)です。
1981年10月築の7階建ての店舗(建物一部)で、お部屋は7階建ての6階部分です。
物件の広さは50.21m2で人気のその他です。
※お部屋のもっと詳しい内容や入居時期、諸条件のご相談など、ホームページには掲載が間に合わず載せきれていない情報もございます。
気になることが御座いましたらお気軽にメールにてお問い合わせください。
077-572-6165
センチュリー21sublime瀬田駅前店
お問い合わせNO:RHS-170303-1015c

物件基本情報

所在地 滋賀県大津市皇子が丘2丁目   周辺MAP
交通 JR湖西線 「大津京駅」 徒歩2分
京阪石山坂本線 「京阪大津京駅」 徒歩4分
種別 / 構造 店舗(建物一部) / S造(鉄骨造) 主要採光面 - 所在階 / 階数 6階 / 7階
築年月 1981年10月  間取り その他( - ) 専有面積 50.21m2

物件詳細情報

損保 不要 更新料 あり 2.2万円 鍵交換代 -
駐車場 なし 近隣駐車場   契約期間
借家区分
3年 -
現況 空き予定 入居可能日 2026年6月中旬 取引態様 媒介
保証人代行会社 日本セーフティー 100.0% 初回:賃料等総額の100% 月額保証料あり 仲介手数料 バイク置き場
他初期費用
     

設備詳細情報

キッチン
バス・トイレ
住空間
  • 角部屋
設備・サービス
  • エレベーター
特 徴
  • 2駅利用可
  • 駅徒歩10分以内
条件・その他  保証人代行:必加入
コメント 整骨院・事務所・美容系に最適☆大津京駅前のテナントビルに空きが出ました♪
備 考 駅から見える好立地のテナントビルです♪

学区情報

小学校区 大津市立長等小学校
(滋賀県大津市)
中学校区 皇子山中学校
(滋賀県大津市)
情報更新日:2026年04月10日 次回更新予定日:2026年04月24日
※各種情報と差異がある場合は現況優先となります
※物件情報の学区情報について
当サイト物件情報に記載されております通学区域(学区)情報は、国土数値情報ダウンロードサービスが提供する小学校区データ【2016年度】及び中学校区データ【2016年度】を元に加工したものですので、記載情報が現在の学区域と異なる場合がございます。国土数値情報ダウンロードサービスのWEBサイト上で記述通り、データは必ずしも正確とは言えません。また、通学区域(学区)は毎年見直しの対象となりますので、そちらを踏まえ学区情報は参考としてご活用下さい。

近隣スポット情報

こちらの物件の空室状況

所在階 / 部屋番号 賃料 共益費 / 管理費 間取り 専有面積 敷金 礼金 お気に入り 物件詳細
6F 12.65万円 16,500円 / - その他 50.21m2 0ヶ月 0ヶ月 お気に入り 物件詳細
6F 12.65万円 16,500円 / - その他 50.21m2 0ヶ月 0ヶ月 お気に入り 物件詳細
6F 12.65万円 16,500円 / - その他 50.21m2 0ヶ月 0ヶ月 お気に入り 物件詳細
6F 12.65万円 16,500円 / - その他 50.21m2 0ヶ月 0ヶ月 お気に入り 物件詳細
077-572-6165
センチュリー21sublime瀬田駅前店
お問い合わせNO:RHS-170303-1015c

この物件に似た物件をチェック!


閲覧した物件の履歴

閲覧した物件の一覧を見る

最近検索した条件一覧



気になったら今すぐ!カンタンお問合せ



お問合せ内容必須
【備考欄】
希望条件・来店希望日・その他質問がございましたらご記入ください。
お客様情報
お名前必須
連絡先必須


※ご記入いただいたメールアドレス宛てに、お問合せ内容の確認メールをお送りいたします。
※Yahoo!メールなどのフリーメールをご利用の場合、迷惑メールフォルダに入る場合があります。
 迷惑メールのフォルダ・設定等をご確認下さい。
メールアドレス
電話番号
FAX(任意)



プライバシーポリシーを必ずご確認ください。内容に同意の上、確認画面へお進みください。

 


▲ページのTOPへ戻る


お問合せはこちら

センチュリー21sublime瀬田駅前店 077-572-6165