今宿2丁目戸建 守山の3SLDK賃貸一戸建て!|センチュリー21sublime

SHARE!

Instagram TikTok line Facebook
来店予約 ネットで
来店予約
TOPページ
物件検索
守山市の賃貸情報一覧
守山の賃貸情報一覧
今宿2丁目戸建 守山の3SLDK賃貸一戸建て!

今宿2丁目戸建 守山の3SLDK賃貸一戸建て 

  • 14.5万円 / 管理費: - / 共益費:-
  • 間取り:3SLDK / 専有面積:134.92m2
  • 敷金:1.2ヶ月 / 礼金:2ヶ月 / 保証金:0ヶ月 / 敷引:0ヶ月
【建物外観】 
  • 【建物外観】 
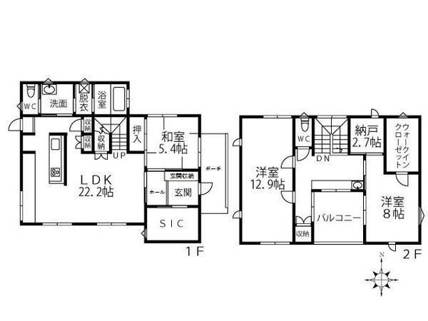
  • 【間取】 
  • 【建物外観】 完成予想図
  • 【キッチン】 
  • 【バス】 
  • 【トイレ】 
  • 【洗面所】 
  • 【玄関】 
  • 【セキュリティ】 
  • 【その他部屋・スペース】 
  • 【その他】 
  • 【収納】 
  • 【その他設備】 
  • 【庭】 
  • 【その他】 
  • 【その他設備】 
  • 【キッチン】 
  • 【トイレ】 
  • 【その他設備】 
  • 【バルコニー】 
  • 【その他】 
  • 【居室・リビング】 

【今宿2丁目戸建についてスタッフからのイチオシポイント!】

守山駅徒歩圏内★リビング広々22帖♪メイン寝室は約13帖のお洒落な戸建賃貸♪
今宿2丁目戸建は滋賀県守山市今宿2丁目【JR東海道・山陽本線 守山駅徒歩14分】にある3SLDK賃貸一戸建てです。
2011年3月築の2階建ての一戸建てで、お部屋は2階建ての-部分です。
物件の広さは134.92m2で人気の3SLDKです。
※お部屋のもっと詳しい内容や入居時期、諸条件のご相談など、ホームページには掲載が間に合わず載せきれていない情報もございます。
気になることが御座いましたらお気軽にメールにてお問い合わせください。
077-565-7778
センチュリー21sublime南草津駅前店
お問い合わせNO:RHS-170302-7993c

物件基本情報

所在地 滋賀県守山市今宿2丁目   周辺MAP
交通 JR東海道・山陽本線 「守山駅」 徒歩14分
JR東海道・山陽本線 「栗東駅」 徒歩28分
JR東海道・山陽本線 「野洲駅」 徒歩53分
JR東海道・山陽本線 「草津駅」 徒歩54分
種別 / 構造 一戸建て / 木造 主要採光面 - 所在階 / 階数 - / 2階
築年月 2011年3月  間取り 3SLDK( LDK22.2畳/洋室12.9畳/洋室8畳/和室5.4畳/S2.7畳 ) 専有面積 134.92m2

物件詳細情報

損保 要 25,000円/2年  更新料 鍵交換代 -
駐車場 有 無料 近隣駐車場   契約期間
借家区分
2030年2030月 定期借家
現況 空家 入居可能日 即入居可 取引態様 媒介
保証人代行会社 リロ・フィナンシャル・ソリューションズ 100.0% 初回:総賃料の100% 月額:総賃料の2% 仲介手数料 バイク置き場
他初期費用
リロサポ/月 1500.0円 除菌施工料/初回 29700.0円 駐車場登録料 11000.0円 

設備詳細情報

キッチン
  • システムキッチン
  • オール電化
  • 食器洗乾燥機
バス・トイレ
  • バストイレ別
  • シャワー
  • 追焚機能浴室
  • 脱衣所
  • 浴室乾燥機
  • 洗面所独立
  • 洗面台
  • オートバス
  • トイレ2ヶ所
  • 2階洗面台
  • 洗面所にドア
  • 洗面所
  • バス専用
  • トイレ専用
住空間
  • バルコニー
  • 南向き
  • フローリング
設備・サービス
  • 収納
  • シューズボックス
  • 玄関収納
  • 納戸
  • TVインターホン
  • 駐輪場
  • CATV
  • 駐車場2台無料
  • 駐車並列2台
特 徴
  • 陽当り良好
  • 閑静な住宅地
  • 通風良好
条件・その他  水道:公営 / 排水:下水 / 楽器相談:可 / ペット:不可 / 保証人代行:必加入
コメント 守山駅徒歩圏内★リビング広々22帖♪メイン寝室は約13帖のお洒落な戸建賃貸♪
備 考 リロサポ:月1500円 HC代:150040円 除菌施工料:29700円 駐車場登録料:1台11000円
保証会社火災保険加入要
CATV加入要自治会費要

学区情報

小学校区 守山市立守山小学校
(滋賀県守山市)
中学校区 守山南中学校
(滋賀県守山市)
情報更新日:2026年04月24日 次回更新予定日:2026年05月08日
※各種情報と差異がある場合は現況優先となります
※物件情報の学区情報について
当サイト物件情報に記載されております通学区域(学区)情報は、国土数値情報ダウンロードサービスが提供する小学校区データ【2016年度】及び中学校区データ【2016年度】を元に加工したものですので、記載情報が現在の学区域と異なる場合がございます。国土数値情報ダウンロードサービスのWEBサイト上で記述通り、データは必ずしも正確とは言えません。また、通学区域(学区)は毎年見直しの対象となりますので、そちらを踏まえ学区情報は参考としてご活用下さい。

近隣スポット情報

こちらの物件の空室状況

所在階 / 部屋番号 賃料 共益費 / 管理費 間取り 専有面積 敷金 礼金 お気に入り 物件詳細
0 14.5万円 - / - 3SLDK 134.92m2 1.2ヶ月 2ヶ月 お気に入り 物件詳細
0 14.5万円 - / - 3SLDK 134.92m2 1.2ヶ月 2ヶ月 お気に入り 物件詳細
0 14.5万円 - / - 3SLDK 134.92m2 1.2ヶ月 2ヶ月 お気に入り 物件詳細
0 14.5万円 - / - 3SLDK 134.92m2 1.2ヶ月 2ヶ月 お気に入り 物件詳細
077-565-7778
センチュリー21sublime南草津駅前店
お問い合わせNO:RHS-170302-7993c

この物件に似た物件をチェック!


閲覧した物件の履歴

閲覧した物件の一覧を見る

最近検索した条件一覧



気になったら今すぐ!カンタンお問合せ



お問合せ内容必須
【備考欄】
希望条件・来店希望日・その他質問がございましたらご記入ください。
お客様情報
お名前必須
連絡先必須


※ご記入いただいたメールアドレス宛てに、お問合せ内容の確認メールをお送りいたします。
※Yahoo!メールなどのフリーメールをご利用の場合、迷惑メールフォルダに入る場合があります。
 迷惑メールのフォルダ・設定等をご確認下さい。
メールアドレス
電話番号
FAX(任意)



プライバシーポリシーを必ずご確認ください。内容に同意の上、確認画面へお進みください。

 


▲ページのTOPへ戻る


お問合せはこちら

センチュリー21sublime南草津駅前店 077-565-7778